EC-GP Arquitectos
INICIO
PROYECTOS
RESTAURANTE MIO.DS
GRISO CAFÉ
REFUGIO S
TIENDA SNEAK
GRISO O'HIGGINS
NOSOTROS
CONTACTO
EC-GP Arquitectos
INICIO
PROYECTOS
RESTAURANTE MIO.DS
GRISO CAFÉ
REFUGIO S
TIENDA SNEAK
GRISO O'HIGGINS
NOSOTROS
CONTACTO
infinite loader
infinite loader
infinite loader
infinite loader
infinite loader
infinite loader
infinite loader
infinite loader
infinite loader
infinite loader
infinite loader
infinite loader

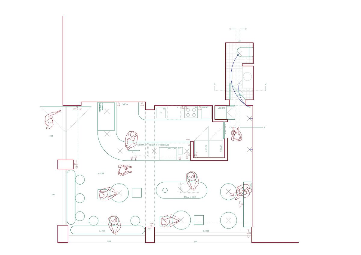
Planta

infinite loader

Detalle en baño

Griso O´Higgins

Este proyecto se abordó como una segunda versión de un café en el cual ya se había trabajado previamente. Por esta misma razón, el nuevo café usó las referencias de la primera versión en cuanto a luminarias, cerámicos, paleta de colores y mobiliario.

Sin embargo, este local traía acompañado un par de desafíos distintos, que obligaron a desarrollar estrategias espaciales diferentes.

La superficie de este local es considerablemente más pequeña que el café anterior. Por lo tanto, gran parte del trabajo se concentró en la planta de arquitectura, donde hubo que disponer la barra y el acceso de manera de sacar la mayor utilidad al espacio de mesas. La condición de espacio reducido hizo que se reforzaran aquella condición de café al paso, poniendo en el centro una isla grande de aliños.

El café se ubica en una de las esquinas neurálgicas de la ciudad y frente a unos de los edificios más emblemáticos de la ciudad, por lo tanto, se tomó la decisión de abrir completamente paños vidriados hacia ambas calles, con el objetivo de integrar el interior con la vida exterior de la ciudad.

Para evitar un tránsito largo desde la puerta de acceso a la barra de café, se optó por ingresar desde la calle Tucapel y así acortar distancia.


Ubicación: Esquina O’higgins con Tucapel. Concepción, Chile
Superficie: 48 m2
Año: 2025
Fotografías: Cristobal Caro

  • Previous
  • Next
Site Logo

EC-GP Arquitectos
Concepción, Chile

Made with Pixpa
Share
http://www.ec-gp.com/portfolio/griso-ohiggins Copied