EC-GP Arquitectos
INICIO
PROYECTOS
RESTAURANTE MIO.DS
GRISO CAFÉ
REFUGIO S
TIENDA SNEAK
GRISO O'HIGGINS
NOSOTROS
CONTACTO
EC-GP Arquitectos
INICIO
PROYECTOS
RESTAURANTE MIO.DS
GRISO CAFÉ
REFUGIO S
TIENDA SNEAK
GRISO O'HIGGINS
NOSOTROS
CONTACTO
infinite loader
infinite loader
infinite loader
infinite loader
infinite loader
infinite loader
infinite loader
infinite loader
infinite loader
infinite loader
infinite loader
infinite loader
infinite loader

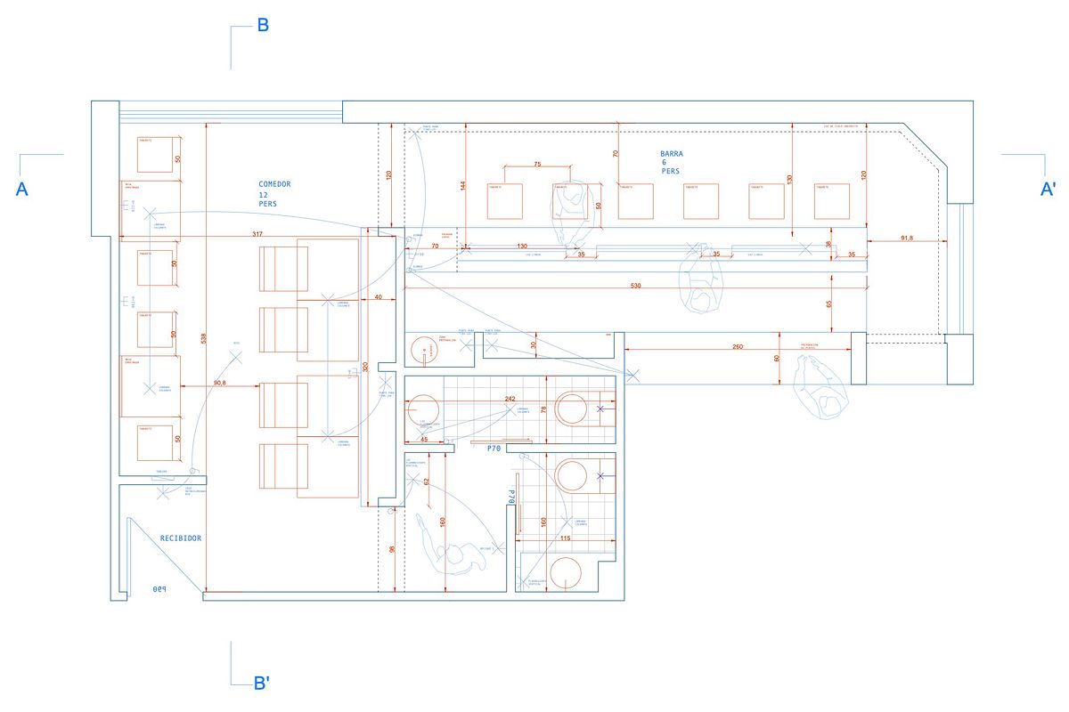
Planta

infinite loader

Corte longitudinal

Restaurante MIO.DS

Dos chefs necesitaban desarrollar un proyecto en una cocina que se encuentra en el segundo piso de una galería comercial. Si bien en la cocina se habilitó una pequeña barra para atender a los comensales, funcionaba principalmente como una gran cocina-delivery especializada en fusión oriental.

La idea era hacer un restaurant ampliando la cocina actual de 15m2. Para eso, se arrendaron los dos locales contiguos, logrando un espacio mayor de 60 m2 en forma de L.

La cocina se mantuvo intacta y los locales contiguos se transformaron en las áreas de comedor. El local más cercano a la cocina se transformó en una larga barra que se abre a ésta y también a la zona de bar. Este espacio mantenía el espíritu inicial de sentirse parte de la cocina.

El segundo local sirvió como el espacio de mesas que también se pensó como el lugar del acceso y de los baños.

El presupuesto era limitado, razón por la cual se decidió realizar el proyecto usando planchas de yeso-cartón como revestimiento interior e invirtiendo un poco más en las piezas de mobiliario en madera. La poca iluminación natural hizo que la iluminación artificial cumpliera un rol clave, trabajándose de manera indirecta e intentando construir un ambiente o atmósfera tenue, jugando con la sobria propuesta de formas y materiales.

Ubicación: San Pedro de la Paz, Región del Bío-Bío, Chile

Superficie: 60m2

Construcción: Jorge Mendoza

Muebles: Cauteloso Taller
Fecha: 2022

Fotografías: Cristobal Caro

  • Previous
  • Next
Site Logo

EC-GP Arquitectos
Concepción, Chile

Made with Pixpa
Share
http://www.ec-gp.com/portfolio/restaurante-mio Copied